13705 SE 25th Ave
FL 34491

Scroll to Content

Details

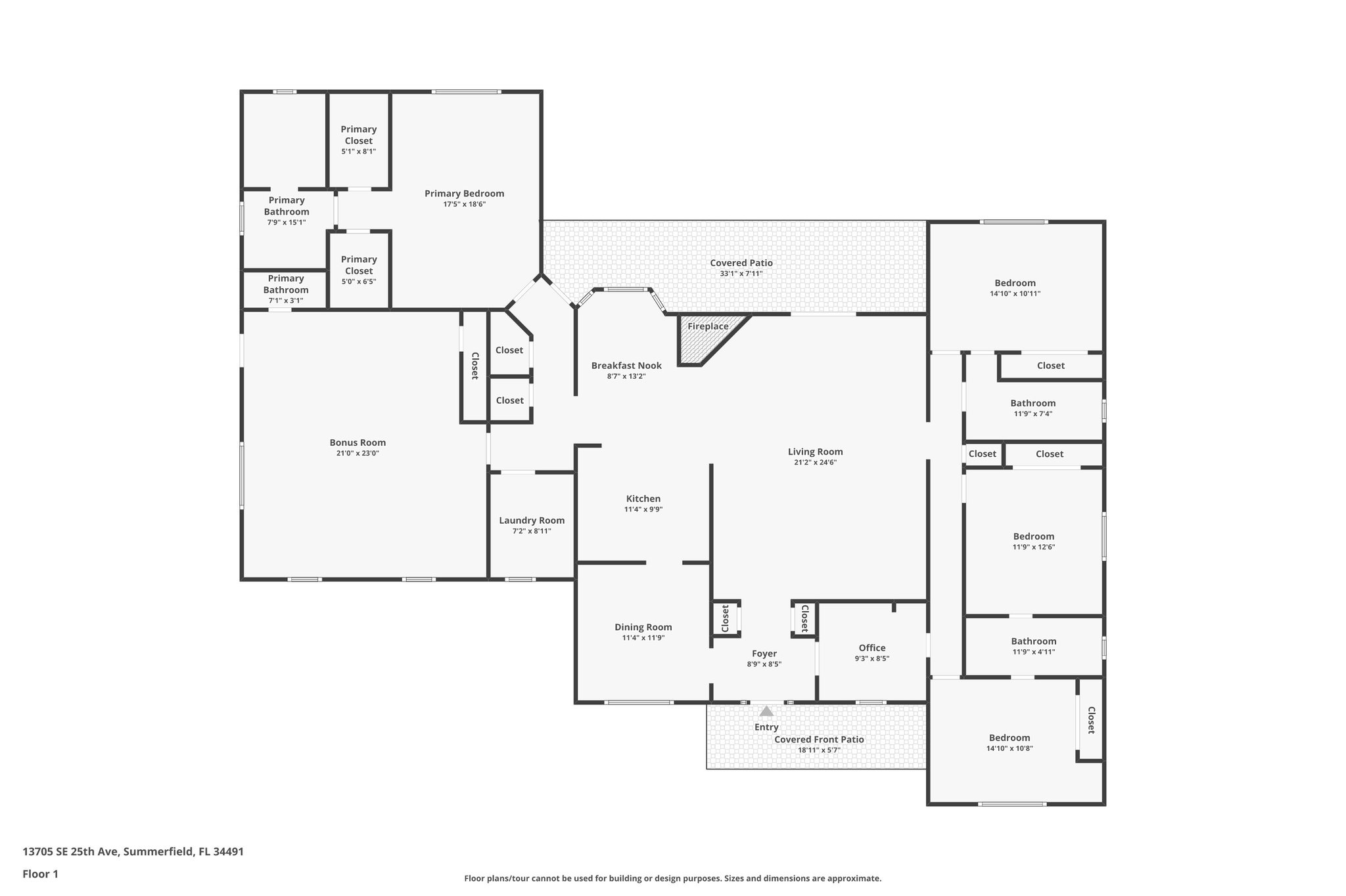
Discover this expansive, beautifully updated 4-bedroom, 3.5-bath retreat set on 3.38 peaceful acres—offering the privacy of country living with room to grow, garden, keep animals, or simply enjoy the land. With nearly 3,200 square feet under air, a massive 23’x22’ family room with in-law potential, a rear lanai and extended patio, and two storage sheds, this property provides remarkable versatility and space. Best of all, there are no HOA restrictions! Conveniently located near CR484 and The Villages, this home combines tranquility with accessibility. A quaint front porch with slate tile flooring welcomes you into a warm, thoughtfully designed interior. The stunning leaded-glass front door with double sidelights opens to a generous foyer featuring two entry closets and striking engineered hardwood flooring that continues throughout the main living areas. Just ahead, the spacious living room offers a cozy corner fireplace, creating an inviting space to unwind. A formal dining room is positioned just off the kitchen, ideal for gatherings and entertaining. The well-appointed kitchen showcases light wood cabinetry, stainless steel appliances, an eat-in counter, and a generous walk-in pantry. Adjacent to the kitchen, a charming dinette features a bay window with a built-in seat and additional storage, creating a perfect spot for casual meals. The luxurious primary suite is designed for comfort with tile flooring, two walk-in closets, and a beautifully designed bathroom that features dual gray vanities and a tiled, walk-in Roman-style shower. The split floor plan provides added privacy, creating a separate family or guest wing with three additional bedrooms and two full bathrooms. Bedrooms two and three include built-in closets and share a Jack-and-Jill-style bathroom with an alabaster shaker vanity topped with quartz and a tiled tub-and-shower combination. The fourth bedroom has its own adjoining full bath, also featuring an alabaster shaker vanity with quartz, a tiled tub-and-shower combo, a linen closet, and a second entry from the hallway. One of the most impressive spaces in the home is the massive 23’x22’ family room. Complete with an updated half bath, a built-in closet, and a separate side entrance, this flexible area is ideal as an in-law suite, guest quarters, recreation space, studio, or even a home business. Near the foyer, a bonus room with built-in bookcases and pocket doors on each side provides an excellent option for a home office or library. A centrally located interior laundry room with white cabinetry, a hanging rod, and a utility sink adds everyday convenience. At the rear of the home, French doors from the living room and an exterior door near the primary suite open to a fabulous outdoor haven. The 33’x9’ lanai and extended patio create a tranquil, private setting for grilling, dining outdoors, or entertaining guests. Outside, two storage sheds offer additional utility for tools and equipment, and a dedicated bonfire pad provides a perfect spot for evening gatherings under the stars. With abundant living space, thoughtful updates, and peaceful acreage, this property offers limitless potential for gardening, animals, outdoor activities, or future enhancements. Don’t miss the opportunity to make this incredible retreat your own. Be sure to watch the walkthrough video and call today to schedule your private showing or virtual tour!

  • $599,900
  • 4 Bedrooms
  • 3.5 Bathrooms
  • MLS: G5104705

Images

Videos

Floor Plans

3D Tour